Q41F美标球阀

Q41F美标球阀
  • 销售
  • 销售
  • 传真

详情介绍

  • 产品介绍
  • 服务承诺
  • 订货流程

Q41F美标法兰球阀主要用于截断或接通介质,也可用于流体的调节与控制。美标球阀广泛用于石油、化工、冶金、电力、建筑、热力、给排水、水处理等行业。

美标球阀 执行标准

设计与制造按ANSI B16.34,JIS 2071
结构长度按JIS B2002
法兰连接尺寸按JIS B2212,2214
检验按JIS B2003

美标球阀 压力试验

试验项目

壳体试验

密封试验

上密封试验

气密封试验

介质

单位

MPa

Lbf/in2

MPa

Lbf/in2

MPa

Lbf/in2

MPa

Lbf/in2

压力等级 (磅级)

150

3.1

450

2.2

315

2.2

315

0.5-0.7

60-100

300

7.8

1125

5.6

815

5.6

815

400

10.3

1500

7.6

1100

7.6

1100

600

15.3

2225

11.2

1630

11.2

1630

900

23.1

3350

16.8

2440

16.8

2440

美标球阀 主要零件材料

名称

材料

阀体
阀盖

A216WCB

A352 LCB

A217WC6

A217WC9

A217 C5

A351 CF8

A351 CF8M

A351 CF3

A351 CF3M

球体

A182 F6

A182 F304

A182 F316

A182 F304L

A182 F316L

阀杆

A182 F6

A182 F304

A182 F316

A182 F304L

A182 F316L

手柄

KTH350-10

螺柱

A193-B7 A320-L7 A193-B8

螺母

A194-2H A194-7 A194-8

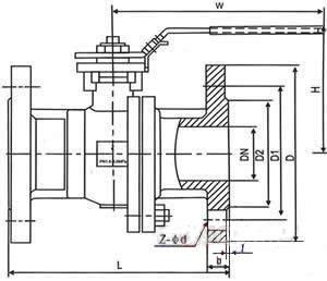
美标球阀 主要外形尺寸

型号

规格 (mm)

尺寸 (mm)

inch

DN

L

D

D1

D2

b

Z-Φd

H

W

Q41F/H/Y-150Lb
Q341F/H/Y-150Lb
Q641F/H/Y-150Lb

1/2″

15

108

89

60.5

35

12

4-Φ15

68

115

3/4″

20

117

98

70

43

12

4-Φ15

75

130

1″

25

127

108

79.5

51

12

4-Φ15

85

150

11/4″

32

140

117

89

64

13

4-Φ15

96

190

11/2″

40

165

127

98.5

73.2

15

4-Φ15

107

230

2″

50

178

152

120.7

92

16

4-Φ19

118

240

21/2″

65

190

177.8

139.7

104.7

18

4-Φ19

145

280

3″

80

203

190.5

152.4

127

19

4-Φ19

160

310

4″

100

229

229

190.5

157

24

8-Φ19

185

330

5″

125

356

254

216

185.7

26

8-Φ22

230

600

6″

150

394

279

241.3

216

26

8-Φ22

260

800

8″

200

457

343

298.5

270

29

8-Φ22

310

1000

10″

250

533

406

362

324

31

12-Φ25

350

1200

型号

规格(mm)

尺寸 (mm)

inch

DN

L

D

D1

D2

b

Z-Φd

H

W

Q41F/H/Y-300Lb
Q341F/H/Y-300Lb
Q641F/H/Y-300Lb

1/2″

15

140

95

66.5

35

15

4-Φ15

72

115

3/4″

20

152

117

82.5

43

16

4-Φ19

75

130

1″

25

165

124

89

51

18

4-Φ19

85

150

11/4″

32

178

133

98.5

64

19.5

4-Φ19

95

180

11/2″

40

190

156

114.3

73.2

21

4-Φ22

110

230

2″

50

216

165

127

92

23

8-Φ19

120

240

21/2″

65

241

190.5

149.4

104.7

26

8-Φ22

150

280

3″

80

283

210

168.5

127

29

8-Φ22

165

310

4″

100

305

254

200.2

157

32

8-Φ22

190

330

5″

125

381

279

235

185.7

35

8-Φ22

240

600

6″

150

403

318

270

216

37

12-Φ22

270

800

8″

200

502

381

330

270

42

12-Φ25

315

1000

10″

250

568

445

387.5

324

48

16-Φ29

380

1200

型号

规格 (mm)

尺寸(mm)

inch

DN

L

D

D1

D2

b

Z-Φd

H

W

Q41F/H/Y-600Lb
Q341F/H/Y-600Lb
Q641F/H/Y-600Lb

1/2″

15

165

95

66.5

35

15

4-Φ15

88

115

3/4″

20

190

118

82.5

43

16

4-Φ19

98

130

1″

25

216

124

89

51

18

4-Φ19

105

150

11/2″

40

241

156

114.3

73.2

23

4-Φ22

135

180

2″

50

292

165

127

92

26

8-Φ19

155

240

3″

80

356

210

168.2

127

32

8-Φ22

175

280

4″

100

432

273

216

157

38

8-Φ25

210

330

6″

150

559

356

292

216

48

12-Φ29

340

800

8″

200

660

419

349

270

56

12-Φ32

400

1000

10″

250

787

508

432

324

64

16-Φ35

440

1200

良好的品质、优良的服务 济南俊豪家庭艺术设计有限公司为你创造更多价值!

“济南俊豪家庭艺术设计有限公司”的期望,不断提升服务质量,精益求精,“真诚的服务”是“济南俊豪家庭艺术设计有限公司”永恒的主题。“济南俊豪家庭艺术设计有限公司”严格按照IS09001-2000 质量体系认证要求,质量严格把关, 责任到人,确保生产、销售、服务的健康运行。加强与用户沟通,竭诚为广大客户提供优良产品,至善至美服务。特此我厂做出以下承诺:

产品标准:

产品严格按照中国GBHG 标准和美国API等标准设计、制造、验收。密封面硬度达到国家规定要求,宽度超过国家标准。

售前服务:

产品介绍,技术交流,非标产品设计,疑难解答。

售中服务:

守信合同,保证及时供货,随时保持与客户联系。 对特殊或复制的产品,我厂安排技术人员对用户进行产品使用、故障排除

售后服务:

1、“济南俊豪家庭艺术设计有限公司”牌产品品质期为自出厂起12个月,实行“三包”服务(包退、包换、保修)。

2、产品在使用中我厂定期组织技术、质检人员进行访问,征询用户对产品质量、 使用状况、改进意见等方面的反馈, 以便进一步提高产品质量。

3、对用户投诉质量问题,快速作出反应,售后服务人员在24-36小时(省外48小时)赶赴现场。

4、对售后服务,要求用户填写服务后的质量反馈信息表,并作出鉴定意见,以便提高济南俊豪家庭艺术设计有限公司的服务质量。

1、客户如对产品有特殊要求,须在订货合同中提供以下说明:

a、结构长度;

b、连接形式;

c、公称直径、全通径、缩径、管道尺寸;

d、运行介质及温度、压力范围;

e、试验、检验标准及其他要求

2、本厂可根据客户特定要求配置各类驱动装置。

3、如由客户提供确定的阀门类型和型号时,客户应正确说明其型号的含义和要求,在供需双方理解一致的条件下签订合同。

4、期货、订货的客户请先来电函详细告诉所需的阀门型号、规格、数量以及交货时间、地点,并按总的30%预定金或全额货款及时汇入我厂帐户,其余货款待发货前汇入,以便及时安排发货。

 

订单流程:

1、客户采购清单传真至,或来电咨询

2、收到客户采购清单,为客户提供阀门型号选型与报价(价格清单)。

3、具体商定:交货期、特殊要求等事宜。

订货须知:

1、客户如对产品有特殊要求,须在订货合同中提供以下说明:

a、结构长度;

b、连接形式;

c、公称直径、全通径、缩径、管道尺寸;

d、运行介质及温度、压力范围;

e、试验、检验标准及其他要求

2、本厂可根据客户特定要求配置各类驱动装置。

3、如由客户提供确定的阀门类型和型号时,客户应正确说明其型号的含义和要求,在供需双方理解一致的条件下签订合同。

4、期货、订货的客户请先来电函详细告诉所需的阀门型号、规格、数量以及交货时间、地点,并按总的30%预定金或全额货款及时汇入我厂账户, 其余货款待发货前汇入,以便及时安排发货。

售中服务:

守信合同,保证及时供货,随时保持与客户联系。

对特殊或复制的产品,我厂安排技术人员对用户进行产品使用、故障排除

售后服务:

1、“济南俊豪家庭艺术设计有限公司”产品品质期为自出厂起12个月,实行三包服务(包退、包换、保修)。

2、产品在使用中我厂定期组织技术、质检人员进行访问,征询用户对产品质量、使用状况、改进意见等方面的反馈,
以便进一步提高产品质量。

3、对用户投诉质量问题,快速作出反应,售后服务人员在24-36小时(省外48小时)赶赴现场。

4、对售后服务,要求用户填写服务后的质量反馈信息表,并作出鉴定意见,以便提高“济南俊豪家庭艺术设计有限公司”的服务质量。

声明

  1. 本文中所有文字、数据、图片均只适用于参考,Q41F美标球阀性能参数、结构尺寸参数、价格等详情,请联系我们
  2. 若无说明,本文章均为原创,转载时请注明本文地址,谢谢合作!